Cabinet di interruttore di media tensione elettrica tempotrica: un quadro utilizzato appositamente nelle stazioni di distribuzione di media tensione. L'armadio dell'interruttore di media tensione è un quadro utilizzato appositamente nelle stazioni di distribuzione a media tensione, prodotta da un interruttore elettrico a medio eliminato da 3-35. L'armadio per l'interruttore di media tensione elettrica temporale è costituito da un mobile e un interruttore e ha funzioni come linee generali in entrata e in uscita, linee in entrata e in uscita di cavo e connessione Busbar. La sua tensione nominale è 1-17,5 kV e la corrente nominale è 630-4000A.
L'intervallo di tensione dell'armadio dell'interruttore di media tensione può anche essere esteso entro 36kV, inclusi livelli di tensione più comuni come 3kV, 6kV, 10kV, 20kV e 35kV.
Aree di applicazione: gli armadietti di interruttore di media tensione sono utilizzati principalmente nelle aree residenziali urbane, edifici pubblici, autostrade, industrie chimiche, ecc., Per la trasmissione e la distribuzione dell'energia e il controllo e la protezione dell'ingresso in sottostazione.
Che cos'è un mobile a interruttore di media tensione? I quadri chiusi in metallo, che hanno buone prestazioni di isolamento per altre apparecchiature diverse dagli interruttori di media tensione, impedisce agli archi di bruciare attraverso le apparecchiature di alimentazione, garantisce la sicurezza dell'uso di energia ed evita anche l'espansione della gamma di guasto degli interruttori di tensione media quando si utilizzano l'elettricità. L'armadio dell'interruttore di media tensione è costituito da due parti principali: il corpo dell'armadio e l'interruttore e ha funzioni come linee di ingresso e uscita sopraelevato, linee di ingresso e uscita del cavo e connessione della barra bus. Il corpo dell'armadio è costituito da un alloggiamento, componenti elettrici (comprese le parti isolanti), vari meccanismi, terminali secondari e connessioni.
Quali sono le categorie di quadri di media tensione?
Secondo la struttura dei quadri di media tensione, ci sono diverse categorie di quadri di media tensione:
(1) I quadri di media tensione semi-chiusi, la parte anteriore e i lati del mobile sono chiusi, la parte posteriore e la barra bus sono esposte, la struttura è semplice, il costo è basso, la sicurezza è scarsa ed è vicina all'eliminazione, come il tipo GGLA.
(2) Switchgear a media tensione di tipo scatola, con un guscio di metallo, ma meno scomparti, la barra bus è anche chiusa e la sicurezza è migliore. Come il tipo XGN.
(3) Switchgear di media tensione di tipo intervallo, ogni stanza è separata da una o più partizioni non metalliche e la sicurezza è migliore. Come il tipo Jyn.
(4) Schedi di media tensione blindati, ogni stanza è separata da partizioni metalliche e messa a terra, con buona sicurezza, struttura complessa, alta precisione di elaborazione e prezzo leggermente più elevato. Come il tipo Kyn realizzato in Cina e ZSL Tipo di ABB.
| ltem | Unità | Parametri | |
| Tensione nominale | Kv | 36 | 40.5 |
| Frequenza nominale | Hz | 50 | |
| CURENT VALUTATO | A | 63012501600200025003150 | |
| Corrente classificata Branch Busbar | A | 63012501600200025003150 | |
| Currente classificata da Busbar principale | A | 63012501600200025003150 | |
| 1min Frequenza di potenza Restringere la tensione | Kv | 70 | 95 |
| Allevamento dell'impulso di alleggerimento | kv | 170 | 185 |
| Restringa la corrente di breve durata di breve durata (4S) | IL | 16/20/25/31.5/40 | |
| Curare di rottura del corto circuito classificato (picco) | IL | 40/50/63/80/100 | |
| Tensione nominale per il circuito di controllo | V | DC110, DC220, AC220 | |
I requisiti dell'ambiente di utilizzo dei quadri di media tensione includono temperatura, umidità, altitudine, qualità dell'aria e altri aspetti.
1. Requisiti di temperatura: i requisiti di temperatura dei quadri di media tensione sono generalmente -5 ℃ ~+40 ℃. Quando la temperatura supera questo intervallo, le prestazioni elettriche, le prestazioni meccaniche e il livello di protezione dell'armadio elettrico saranno interessate.
2. Requisiti di umidità: i requisiti di umidità dei quadri di media tensione sono generalmente che l'umidità relativa non supera il 50%. Quando l'umidità è troppo alta, la perdita, la riduzione dell'isolamento e altri problemi possono verificarsi all'interno del mobile elettrico, influenzando la durata e la sicurezza delle attrezzature
3. Requisiti di altitudine: Per le aree ad alta quota, i quadri di media tensione devono essere utilizzati a capacità ridotta o sottoposto a test di tensione di resistenza in conformità con gli standard pertinenti. Ad esempio, ad un'altitudine di 3.000 metri, sono necessari test di tensione di isolamento e resistenza all'isolamento per garantire il normale funzionamento dell'apparecchiatura
4. Requisiti di qualità dell'aria: i requisiti di qualità dell'aria dei quadri di media tensione sono relativamente elevati e generalmente non contengono gas corrosivi, polvere e altre sostanze dannose. Quando esistono queste sostanze dannose nell'aria, danneggeranno le apparecchiature elettriche e influenzerà la durata e la sicurezza delle attrezzature
Le caratteristiche principali e i vantaggi del quadro di media tensione includono i seguenti aspetti:
1. Parametri ad alte prestazioni: i quadri di media tensione hanno eccellenti parametri di prestazione, come la capacità di resistenza ad alta tensione e la corrente di cortocircuito per resistere alla capacità. Ad esempio, l'impulso di fulmini resiste alla tensione di mediocre-tensione raggiunge i 75kV e la corrente di resistenza a breve tempo di breve durata può raggiungere 25-40ka. Può funzionare stabilmente in vari ambienti ad alta tensione, resistere efficacemente a scosse di guasto come sovratensione e corrente di corto circuito nel sistema di alimentazione e garantire la continuità dell'alimentazione.
2. Buone prestazioni di isolamento e arco: quadri di media tensione è progettato con buone prestazioni di isolamento e arco. Ad esempio, la capacità di arcing interna del quadro di media tensione raggiunge 31,5 ka/4s e 40ka/0,5, che soddisfa lo standard AFLR a livello IAC, può limitare efficacemente la gamma di impatto dell'ARC durante i guasti interni, ridurre i danni al mobile e alle apparecchiature circostanti e garantire la sicurezza del personale e delle apparecchiature.
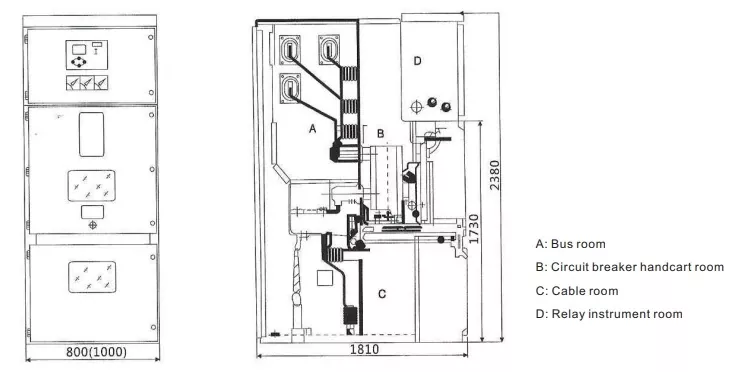
3. Design modulare e miniaturizzato: il quadro di media tensione di solito adotta il design modulare, che è facile da produrre, assemblare, mantenere e revisione. Ad esempio, l'armadio del quadro di media tensione è diviso in unità funzionali indipendenti come sala bus di buste, sala da interruttore a circuito, sala via cavo e vano di controllo. Le dimensioni e l'interfaccia di connessione di ciascuna unità sono standardizzate, il che è comodo per la posizione e l'isolamento dei guasti, riducendo i tempi di interruzione dell'alimentazione e i costi di manutenzione.
4. Inoltre, la larghezza del mobile di alcuni modelli è di soli 550 mm, il che riduce notevolmente lo spazio del pavimento ed è adatto a luoghi con risorse terrestri strette.
5. Funzioni intelligenti: il moderno quadro di media tensione ha una varietà di funzioni intelligenti, tra cui monitoraggio intelligente della temperatura intelligente incorporato, monitoraggio delle caratteristiche della camera per aspirapolvere, monitoraggio intelligente del gabinetto del carrello, caratteristiche meccaniche e monitoraggio del circuito secondario, ecc. Controllo del carrello elettrico e dei coltelli a terra, monitoraggio e protezione, ecc., Migliora il grado di automazione delle attrezzature e la sicurezza del funzionamento. 6. Garanzia ad alta sicurezza: il quadro a media tensione è progettato con interblocco a cinque protezione e altre misure di sicurezza. Ad esempio, il quadro di media tensione adotta un design di interblocco a cinque protezione per impedire la miscelanza come la spinta e la tiratura del carico di un interruttore a circuito sotto carico, apertura errata e chiusura errata l'interruttore, ecc., Fondamentalmente garantendo fondamentalmente la sicurezza degli operatori.

La tua azienda può personalizzare i prodotti in base alle mie esigenze?
Sì, possiamo personalizzare i prodotti in base alle esigenze dei clienti. In generale, i clienti devono solo fornire: layout del circuito, tensione, corrente, ecc.
Qual è il tuo tempo di consegna più veloce?
Normalmente, accettiamo richieste dei clienti. Dopo che i parametri tecnici del gabinetto Switch sono collegati, ci vogliono 1-2 giorni per emettere un listino prezzi e comunicare con i clienti in merito al tempo di produzione e consegna in base alla situazione reale.
Com'è il tuo servizio post-vendita?
Supportiamo una garanzia di 1 anno. La quotazione normale non include il servizio post-vendita in loco. Sono disponibili comunicazioni e orientamenti online gratuiti.
KYN61 33KV MV HV Switchgear elettrico ad alta tensione media
KYN28 Switchgear INDIUMO IN INDIUMENTO 11KV
Interruttore ad alta frequenza CC Armadio di alimentazione GZDW
Cabinetto di distribuzione a potenza chiusa interna XL-21
Distribuzione a bassa tensione Distribuzione reattiva Armadio GGJ Serie GGJ
MSN Tipo di tensione a bassa tensione TIPO DI TIPO MABIETY